• O firmie
  • Oferta
  • Architektura - konstrukcja - urbanistyka
    • Mieszkalne
    • Użyteczność publiczna
    • Warsztatowe, garażowe, gospodarcze
    • Urbanistyka
    • Wnętrza
  • Instalacje - wykonawstwo
    • Sieci i przyłącza
    • Instalacje wewnętrzne
    • Prace ziemne
  • Kontakt
    • Formularz kontaktowy
    • Mapa dojazdu

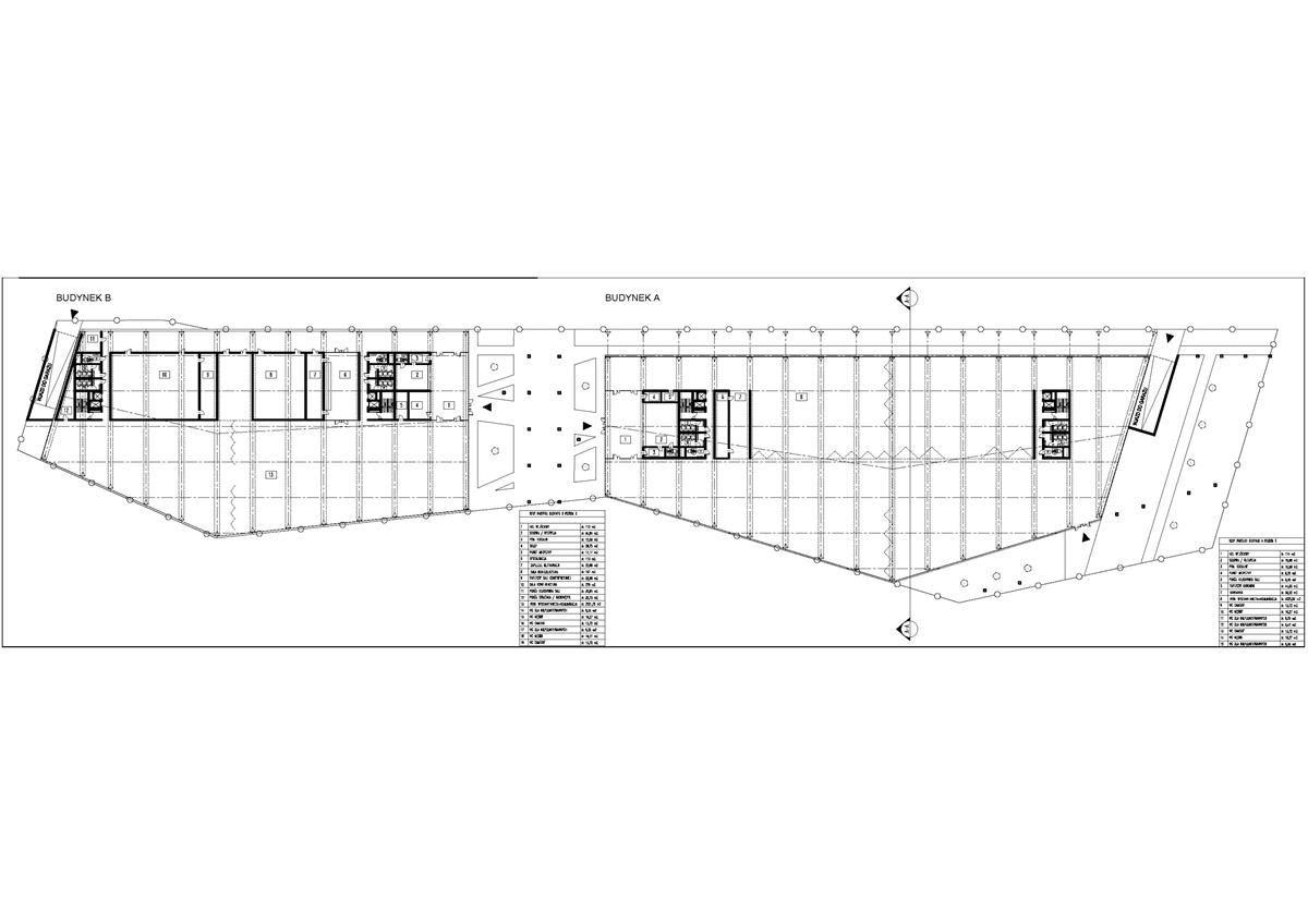
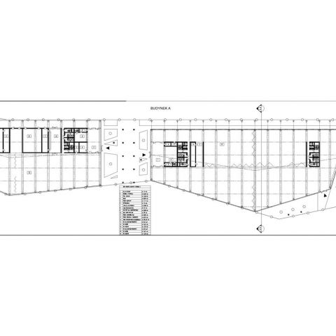
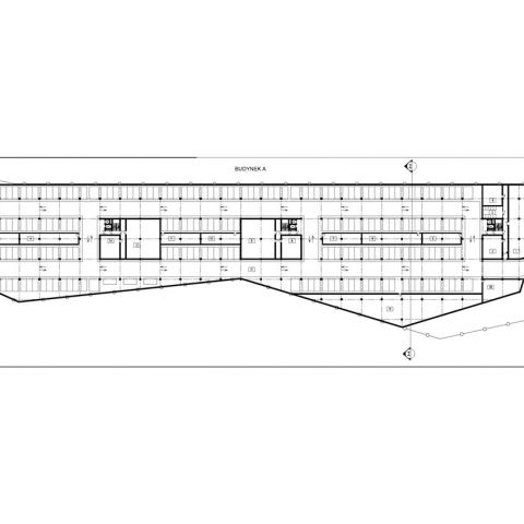
Budynki użyteczności publicznej - Działdowo

  • ELEWACJE.jpg ELEWACJE.jpg
  • RZUT GARAZU.jpg RZUT GARAZU.jpg
  • RZUT PARTERU 1.jpg RZUT PARTERU 1.jpg

© Wszelkie prawa zastrzeżone.

Zrealizowane przez: